Expert Guide to Wall Hung Toilet Details & Installation Plans in Koh Samui
When it comes to luxury bathroom design in Koh Samui, the Wall Hung Toilet is the gold standard. It offers a sleek, minimalist aesthetic and superior hygiene. However, installing these units on an island involves specific challenges—from humidity considerations to precise plumbing alignments.
At CHK Structure and Service Co., Ltd., we have over 10 years of experience providing comprehensive home repair and renovation services in Koh Samui. Having served over 3,000 households and numerous high-end villas, we understand the technical nuances required for a perfect installation.






Why Choose a Wall Hung Toilet for Your Koh Samui Property?
In the tropical environment of Koh Samui, functionality is just as important as style:
-
Ease of Cleaning: No pedestal means no hidden corners for mold or sea salt residue to build up.
-
Modern Aesthetics: Perfectly complements the "Tropical Modern" architecture prevalent in Koh Samui villas.
-
Space Efficiency: Clears floor space, making small en-suites feel significantly larger.
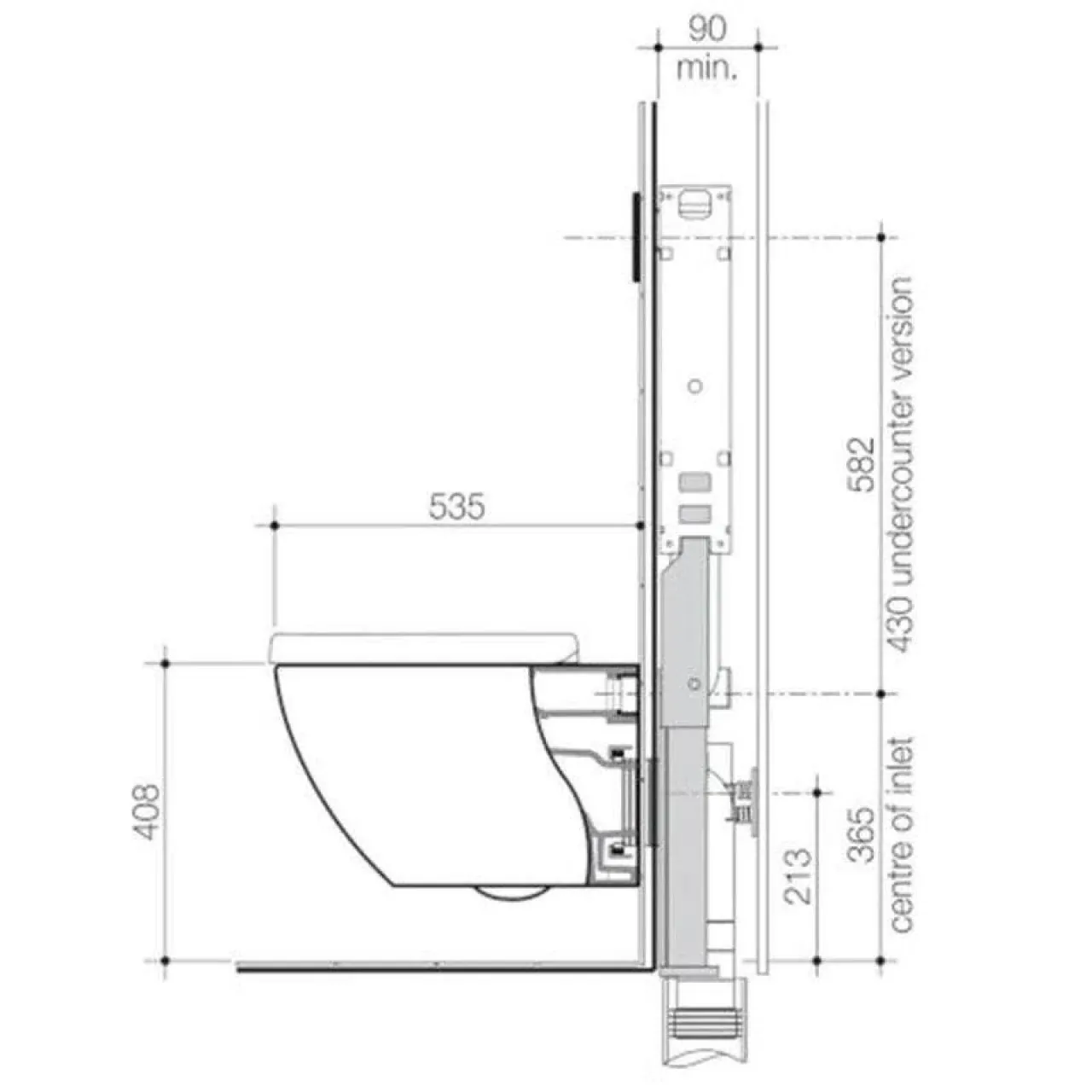
Technical Installation Plan (Wall Hung Toilet Details)
A successful installation in Koh Samui starts with a precise plan. Here are the critical dimensions and structural requirements our team follows:
1. Structural Support and Framing
-
The Carrier System: The concealed steel frame must be anchored to a load-bearing wall. In many Koh Samui renovations, we reinforce existing walls to ensure the unit can support up to 400kg.
-
Depth Requirements: Ensure a wall cavity of at least 160mm - 275mm to house the cistern and pipework effectively.
2. Precision Plumbing Layout
-
Height Setting: The standard rim height is 400mm - 480mm from the finished floor.
-
Water Inlet & Waste Outlet: The waste pipe (typically Ø 110mm) must be positioned with a specific fall rate to prevent blockages—a common issue in island properties with varying water pressure.
Common Challenges in Koh Samui Bathrooms
Living in Koh Samui presents unique maintenance hurdles that affect your plumbing choices:
-
Hard Water Issues: Local water sources can lead to mineral buildup inside concealed tanks. CHK Structure recommends high-quality filtration systems to protect your investment.
-
Humidity & Corrosion: We ensure all concealed components are treated or designed to withstand the salty, humid air of the Gulf of Thailand.
Pro Tip: "Always verify your floor thickness (screed + tiles) before bolting down the frame. In Koh Samui, we often see errors where the toilet ends up too low because the tile height wasn't accounted for."
Summary: Professional Installation Services in Koh Samui
Installing a Wall Hung Toilet is not a DIY job—it requires a synergy of masonry, plumbing, and waterproofing expertise. For property owners in Koh Samui, choosing a contractor with local experience is the best way to avoid costly leaks and structural failures.
CHK Structure and Service Co., Ltd. provides reliable, high-quality bathroom solutions tailored to the island's conditions. From detailed planning to the final flush, we've got you covered.
Contact our Koh Samui expert team today:
-
Address: 64/33 Moo 2, Maenam, Koh Samui, Surat Thani 84330
-
Phone: 063-841-9593
-
WhatsApp: +66 63 841 9593
-
Line ID:
samuifix -
Our Services:
Professional Villa Maintenance Koh Samui
Comments